Skip to main content Skip to search Skip to main navigation
Alles voor een complete badkamer
Nederlandse fabrikant van baden en douchevloeren
Gerenommeerde dealers
Alles voor een complete badkamer
Nederlandse fabrikant van baden en douchevloeren
Gerenommeerde dealers
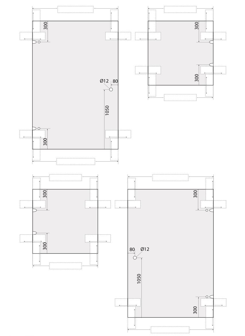
Properties "Deur tot 90 + verkorte zijwand tot 120x200-Mat/satijn glas, brons beslag"
Inhoud Ltr: 0.0000
Item type: Samenstelling
Kleur: Mat/Satijn glas
Korte beschrijving: Hoekcombinatie
Kortingsgroep: Maatwerk
Materiaaldikte mm: 8.0000
Merk: Xenz
Serie: Maatwerk glas